2D
Renderings
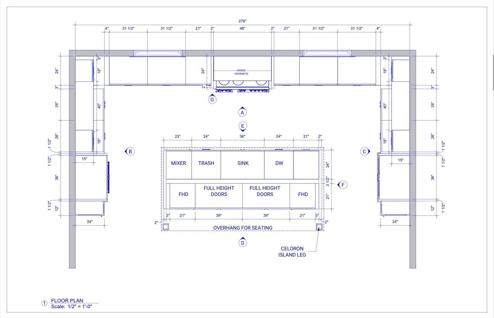
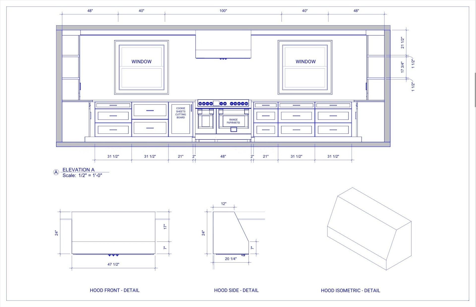
Our 2D rendering services provide precise and detailed blueprints for your custom cabinetry projects. These renderings are essential for visualizing the layout and ensuring every element fits perfectly within your space.




3D
Realistic Rendering
Experience your new cabinetry design before it’s built with our 3D photo-realistic renderings. These renderings provide a life like preview of your space, showcasing the beauty and functionality of your custom cabinetry.




Immersive Visualization
See your cabinetry and stunning detail, with realistic textures, and finishes.
Enhanced Design Decisions
Make informed choices about colors, materials, and layouts with a clear visual representation.
Client Collaboration
Work closely with our designers to refine and perfect your vision.


